Wiederherstellung und Umnutzung eines Schlosses in Varchentin

Das „Schloss Varchentin“ ist ein denkmalgeschütztes ehemaliges Herrenhaus in einem Ortsteil der Gemeinde Groß Plasten im Landkreis Mecklenburgische Seenplatte

Das Herrenhaus wurde 1847 im Stil der Tudorgotik erbaut. Architekt des Gebäudes war der Schweizer Baumeister Auguste de Meuron.

Ziel ist es, den „historischen Ort“ auch für den Umgang mit den erforderlichen heutigen Nutzungen zu erhalten.

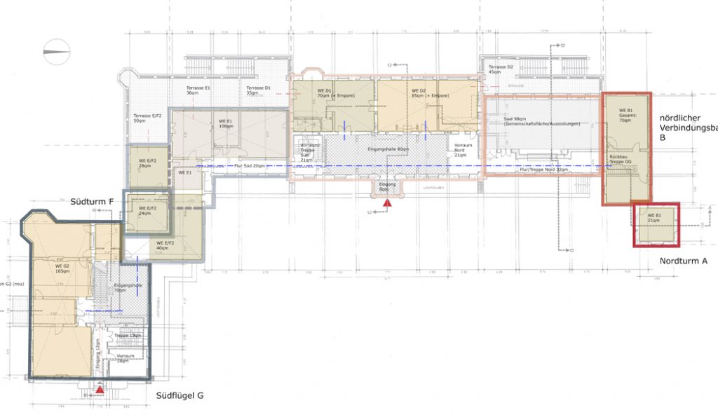
Das Gebäude wird strukturell in 5 Bauteile organisiert, Nordturm A mit Verbindungsbau B, Saalbau C, Hauptbau D, Seitenflügel E mit Südturm F und Südflügel G. In 4 der 5 Bauteilen entstehen 21 Wohneinheiten mit gesamt ca. 2150qm Wohnfläche. Bauteil „Saalbau C“, als Gemeinschaftsfläche für die Öffentlichkeit und als „Treffpunkt“ der Bewohner des Schlosses, bleibt in seinen historischen Räumen erhalten. Die Fassadenstrukturen werden nicht verändert und in seinen historischen Bauzustand wiederhergestellt.

Projektbearbeitung: Leistungsphase 1-2


Jahr: 2019    Status: Geplant