Umnutzung einer Kirche in Essen-Steele

Bei der geplanten Baumaßnahme handelt es sich um die Umnutzung des Kirchengebäudes Herz-Jesu am Buschgarten 9 in Essen-Steele. Das Gebäude wurde im Jahre 1966 fertig gestellt. Seit 2005 steht das Gebäude leer. 

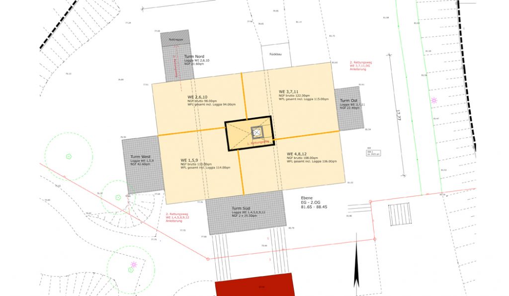
Geplant sind 15 Wohneinheiten incl. Nutzung der Türme. 3 Wohnebenen mit jeweils 4 Wohnungen werden in dem ehemaligen „Kirchenraum“ entstehen können. Zentral angeordnet wird das Treppenhaus mit einem Aufzug bis auf die Dachebene.  Die Türme in den „Wohnebenen“ werden genutzt als Außenfläche (Loggia) für die jeweiligen Wohnungen. Von der Dachebene erschließen sich 3 separate Wohnhäuser (Tiny-Houses) in den Türmen oberhalb der Dachebene. Das Hanggeschoß beinhaltet das „Foyer“ Technikräume und notwendige Abstellräume. Erschlossen wird das Gebäude dann ausschließlich von Süd-Westen von der Straße Am Buschgarten.

Die entstehende Wohnfläche wird voraussichtlich 1500 qm betragen.

Projektbearbeitung: Leistungsphase 1-2


Jahr: 2020    Status: Geplant