Neubau eines Wohnhauses in Osnabrück

Bei der geplanten Baumaßnahme handelt es sich um den Neubau eines Wohnhauses mit 5 Wohneinheiten. 

Das Wohnhaus steht unmittelbar an der Augustenburger Straße und schließt im Norden die bestehende Straßenflucht. Trotz der 4-geschossigkeit fügt sich das Gebäude maßstäblich in den vorhandenen Kontext ein, schreibt bei aller Eigenständigkeit die Proportionen und den Maßstab der Nachbarbauten fort. Die Flächenproportionen beziehen sich auf das bestehende Wohnhaus Augustenburger Straße 9.

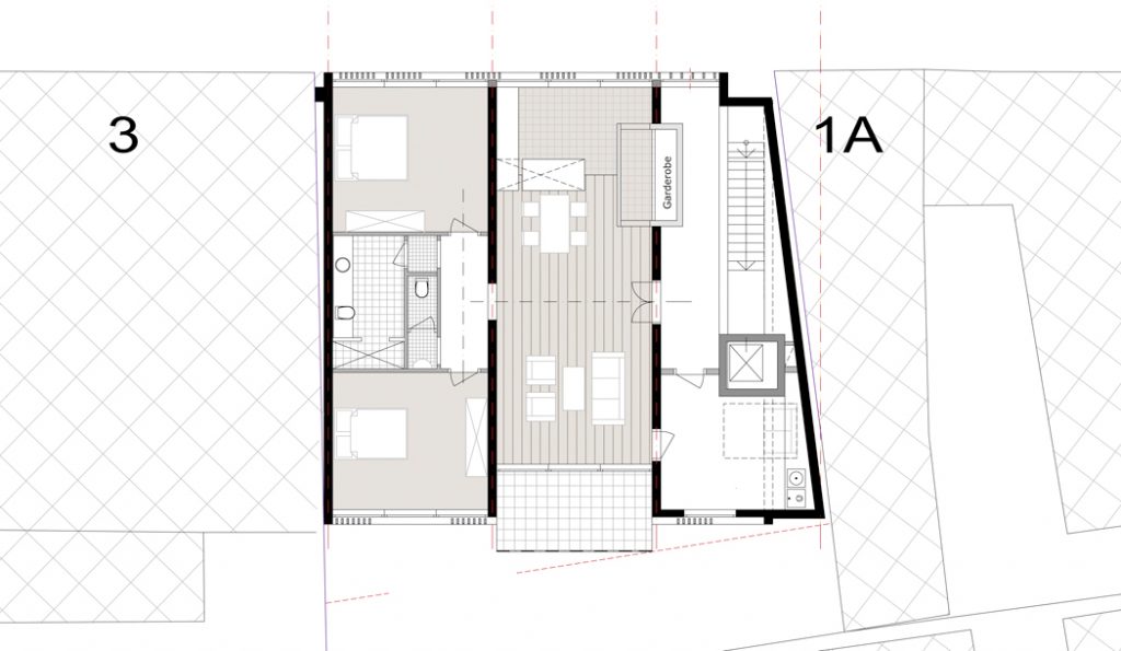
Das Wohnhaus soll als Holzhybridbau ausgeführt werden. Alle Wohnungen sind mit dem Aufzug zu erreichen und können wahlweise als „barrierefreie“ Wohnungen ausgeführt werden. Durch bodentiefe Fenster mit einer großzügigen Verglasung verfügen alle Wohnungen in den Obergeschoßen über zahlreiche Beziehungen zwischen Innen und Außen. Nach Süden ausgerichtet, werden die Wohnungen durch Balkone in Richtung Garten ergänzt.

Die gesamte Grundstücksgröße des Flurstückes 150/15 beträgt 222 qm. Die entstehende Wohnfläche wird voraussichtlich 460 qm betragen.

Projektbearbeitung: Leistungsphasen 1-4


Jahr: 2020    Status: Geplant