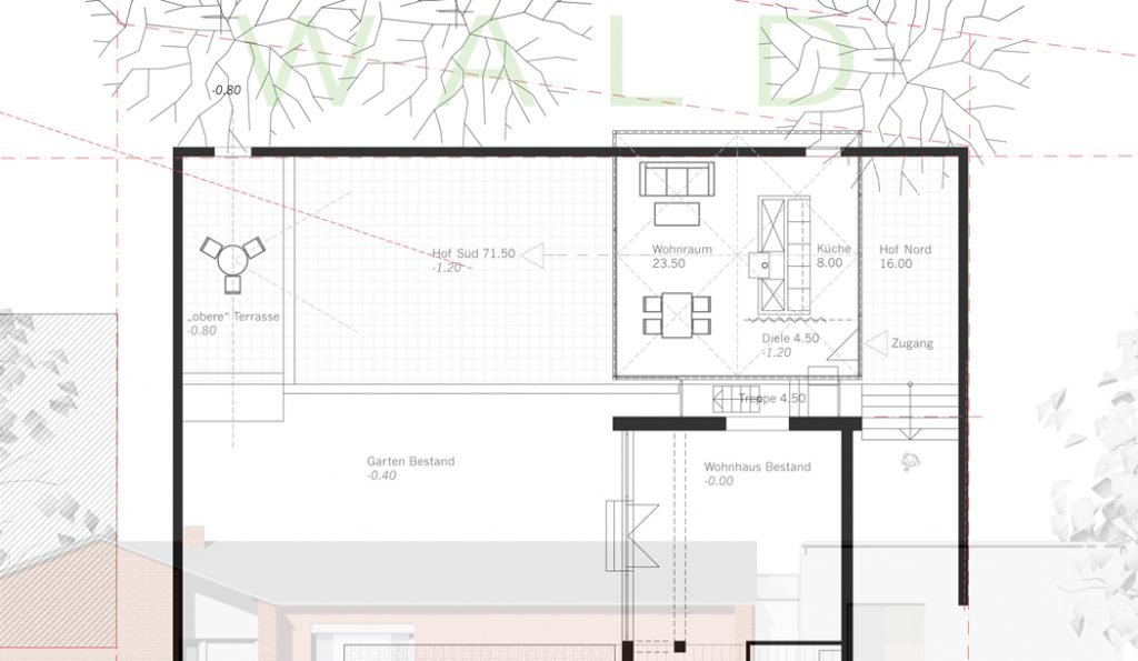
Erweiterung eines Wohnhauses in Aachen-Laurensberg

Bei dem Bauvorhaben handelt es sich um die Erweiterung eines erdgeschossigen Wohnhauses (Bungalow) in einer heterogen Siedlungsstruktur in Aachen Laurensberg. Die Erweiterung wurde im rückwärtigem Gartenbereich entwickelt, so dass die vorhandene „Bungalowarchitektur“ für das gesamte Siedlungsbild erhalten bleiben würde. Der Anbau , ein 2-geschossiger Stahlbau, kann ebenso als ein eigenständiges „Tiny House“ genutzt werden.

Projektbearbeitung: Leistungsphasen 1-3


Jahr: 2022    Status: Geplant